
Nestled in San Francisco’s vibrant NOPA neighborhood, this stunning renovation celebrates the best of both worlds—modern sophistication seamlessly blended with old-world European charm. As described on Saffron + Poe’s website:
“San Francisco’s NOPA neighborhood is a vibrant, eclectic, and rapidly evolving area known for its tree-lined streets, classic Victorian and Edwardian architecture, and a strong sense of community. We couldn’t have been more game when the project opportunity came about with an old friend and now adored client in such a special nook in the city.”
“After 20 years of living in his home, our client was ready to embark on a full renovation to create the space of his dreams. The design vision was clear—a blend of modern and old-world European influences interwoven with family heirloom portraits that would eventually serve as a central focus point in the main living area. Bringing these ideas to life was such an honor as we aimed to optimize, refine, and personalize his cherished city sanctuary.”
Collaboration & Craftsmanship: A Unified Vision
This project was a true meeting of design minds, bringing together Saffron + Poe (Johanna + Fiona), Fahan Construction, Cornerstone Home Design, and Ovation Cabinetry. From initial concept to final installation, the project team played a pivotal role in bringing this refined yet deeply personal home to life. As Saffron + Poe further describes:
“Design trends will forever come and go, but careful consideration of each element with the owner’s unique personality and lifestyle in mind will always lead us to the right interior direction.”
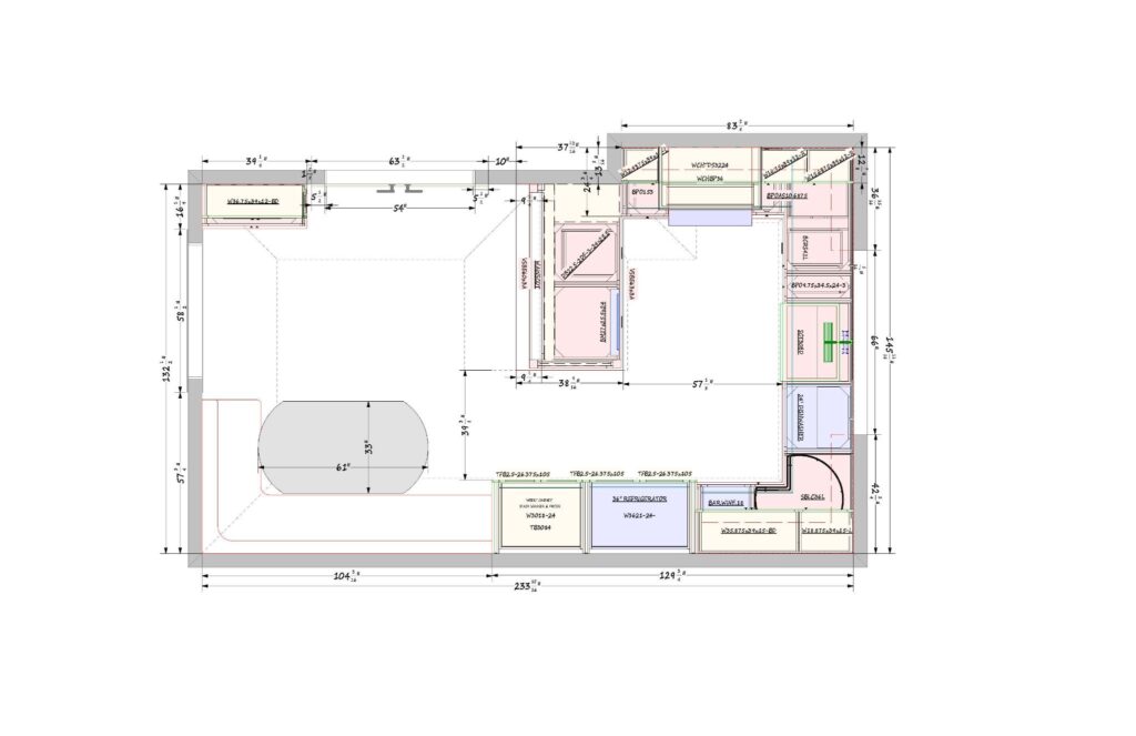
Original Kitchen Layout before Renovation:



Design Concept Approved:

Completed Project Photos:



Striking Features: A Testament to Custom Design
- The Floating Peninsula Island – A Masterpiece in Function & Form
One of the most striking features of the renovation is the floating peninsula island—a beautifully executed design element that feels both sculptural and highly functional. This piece anchors the kitchen space, balancing openness and utility in a seamless flow.



2. The Art of Flush Inset Cabinetry– A Testament to Team Collaboration
At Cornerstone Home Design, collaboration is at the heart of every project. Executing flush inset cabinetry is a meticulous process that demands precision and a shared commitment to craftsmanship. This project was a true reflection of that spirit.
The Cabinetry and Kitchen Materials, designed with care by Cornerstone Home Design, built with precision by Ovation Cabinetry, and installed seamlessly by Fahan Construction, this cabinetry represents more than just expert execution—it embodies the synergy of a team working toward a common goal. The coordination, problem-solving, and dedication that went into every reveal and alignment showcase the pride we take in our work and in the partnerships that make it possible.


3. Maximizing Space with a G-Shape Layout
The kitchen’s G-shape configuration required careful spatial planning to maximize storage and flow. This layout provides efficiency without sacrificing openness, making it an ideal solution for urban living.



4. The Hidden Miele Washer/Dryer – Seamless Functionality
Integrating high-end appliances while maintaining a clean aesthetic can be challenging, but the hidden Miele washer/dryer is a prime example of how form and function can coexist harmoniously. Tucked seamlessly into the cabinetry, it preserves the visual integrity of the space while delivering top-tier performance.




A Featured Design Moment: The Dining Nook + The Viral Bookcase Door
While the sliding bookcase door from Saffron + Poe’s design is an inspiring example of custom craftsmanship and thoughtful spatial planning in the earlier phase of the project—and even went viral—the featured image highlights another striking kitchen design element—the dining nook. This space beautifully captures Saffron + Poe’s ethos of blending global artisanship with modern interiors, offering a cozy yet refined gathering area that enhances the home’s overall aesthetic.
Explore more of this project, including the sliding bookcase door, on Saffron + Poe’s website: Saffron + Poe – NOPA Victorian Project

Hi, this is a comment.
To get started with moderating, editing, and deleting comments, please visit the Comments screen in the dashboard.
Commenter avatars come from Gravatar.